RIF. 3215 - Vendesi tipica colonica nel Chianti
3215 / Vendesi tipica colonica nel Chianti
Vendesi tipica colonica nel Chianti close

€ 790.000

6 camere
4 bagni

email invia una richiesta  phone CHIAMA l'agenTE PER TELEFONO

                                                         
EUR. 790.000

Caratteristiche

6 camere
4 bagni

Superficie : 400 qm
Distanze: 4 km Gaiole in Chianti, 6 km Radda in Chianti
Terreno: 1,8 ha
Piscina: possibilità di costruire
Classe energetica: G
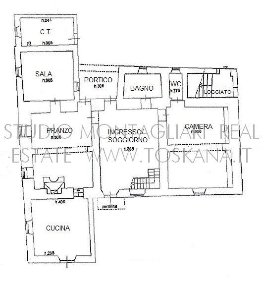
Planimetrie

Scarica la scheda in pdf


Photogallery
  • Descrizione della Proprietà

    Nel cuore del Chianti Classico, con vista su dolci colline e vigneti, a pochi chilometri dal borgo di Gaiole in Chianti, si trova questo casale del XVI secolo che offre agli amanti della natura silenzio, riposo e serenità, giardino, bosco e un panorama incomparabile.
    La proprietà è costituita da un autentico casale costruito con pietra a vista, a testimonianza dell'attenzione rivolta alla conservazione dell'architettura tradizionale.
    Sorge in cima di una collina e offre una magnifica vista sulla valle e sulle colline circostanti, compresi un paio di castelli della zona. Il casale, disposto su due piani, ha una superficie di 400 mq e offre ampie e confortevoli camere con soffitti con travi in legno e pavimenti in cotto. Al piano terra, con diverse aperture verso l'esterno, si trovano un ampio ingresso, una spaziosa cucina, una sala da pranzo con arco a vista e grande camino e uno studio o secondo soggiorno. Prosegue con una spaziosa camera da letto padronale con bagno en-suite e un bagno separato. Una scala interna, ma anche esterna, conduce al piano superiore, che comprende un altro ampio soggiorno con camino, 5 camere da letto, un bagno e un WC. Dal caratteristico portico e dalle scale esterne si accede a un piacevole giardino sul retro della casa, dove è possibile realizzare una piscina.
    Il casale è circondato da circa 1,8 ettari di terreno, prevalentemente alberato, che garantisce privacy e riservatezza. 

    La proprietà è ideale sia come residenza principale che come struttura ricettiva per affitti brevi. La sua posizione la rende particolarmente appetibile per chi desidera vivere in un ambiente tranquillo e rurale, ma allo stesso tempo godere della vicinanza a città d'arte come Siena e Firenze, in una delle zone più belle e incontaminate del Chianti Classico.

close